请按键盘
Ctrl + D
把多多优省联盟加入收藏夹,大额内部优惠券信息一手掌握!
找券
实时疯抢榜
九块九包邮
店铺街
精选热搜
首页
>
其它
>
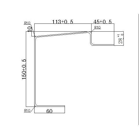
集装箱耐候钢后底梁/门槛 货柜后底梁/门槛 非标定 制后底梁/门槛
集装箱耐候钢后底梁/门槛 货柜后底梁/门槛 非标定 制后底梁/门槛
手机扫一扫购买
tb6989797897351
- 已有
0
人购买 -
加入收藏
原价 ¥320
¥
320
券后价
有效期
去
购
买
装箱
集装箱
门槛
货柜
门槛
标定
门槛
推荐文案
xxxxxxxxxxxxx
疯抢榜
返回顶部